При оценке необходимых рисков и мер предосторожности следует учитывать:
скорость закрытия;
количество форм и количество дневного света;
ли вверх-поглаживание или вниз-поглаживание;
тип форм (сыпучих или фиксированных);
режим работы, в частности, если работа на одной или обеих сторонах и количество операторов;
количество тела доступ между пресс-форм.
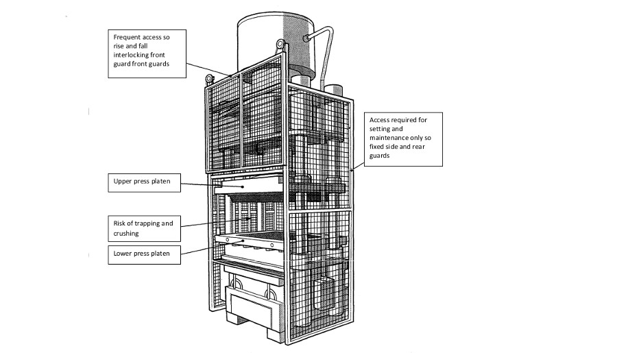
Многие инциденты происходят во время технического обслуживания и смены инструмента и адекватного контроля против предотвращения падений из-за гравитации важны для вниз-поглаживание прессов. Они могут включать в себя скотч или с пилотным управлением обратный клапан и противовес сборки клапана в гидравлической цепи. Дополнительные сведения о требованиях к охране см.
BS EN 289 пластмассовые и резиновые Станки — прессы — требования безопасности
BS EN 201 пластмассовые и резиновые машины-машины для литья под давлением

Leave a comment
Make sure you enter all the required information, indicated by an asterisk (*). HTML code is not allowed.